С наступлением холодов, дождей и прочей пакости стали вылезать различные глюки по машине:
- из 20 случаев 19 не читается Ваг-комом блок управления двигателем (раньше всё читалось);
- когда всё же один раз прочёл не смог адаптировать дроссельную заслонку, в окошке "адаптация" было написно "ошибка";
- появилось троение, ошибки по форсункам (см. принт) стёр, ездил целый день без проблем, а подъезжая к дому на светофоре снова затроило. Скинул клемму с аккума, поехал без троения, снова остановился на минуту-две - затроило;
- был на двух сервисах, ни на одном из них сканер не пускает в блок управления ДВС!
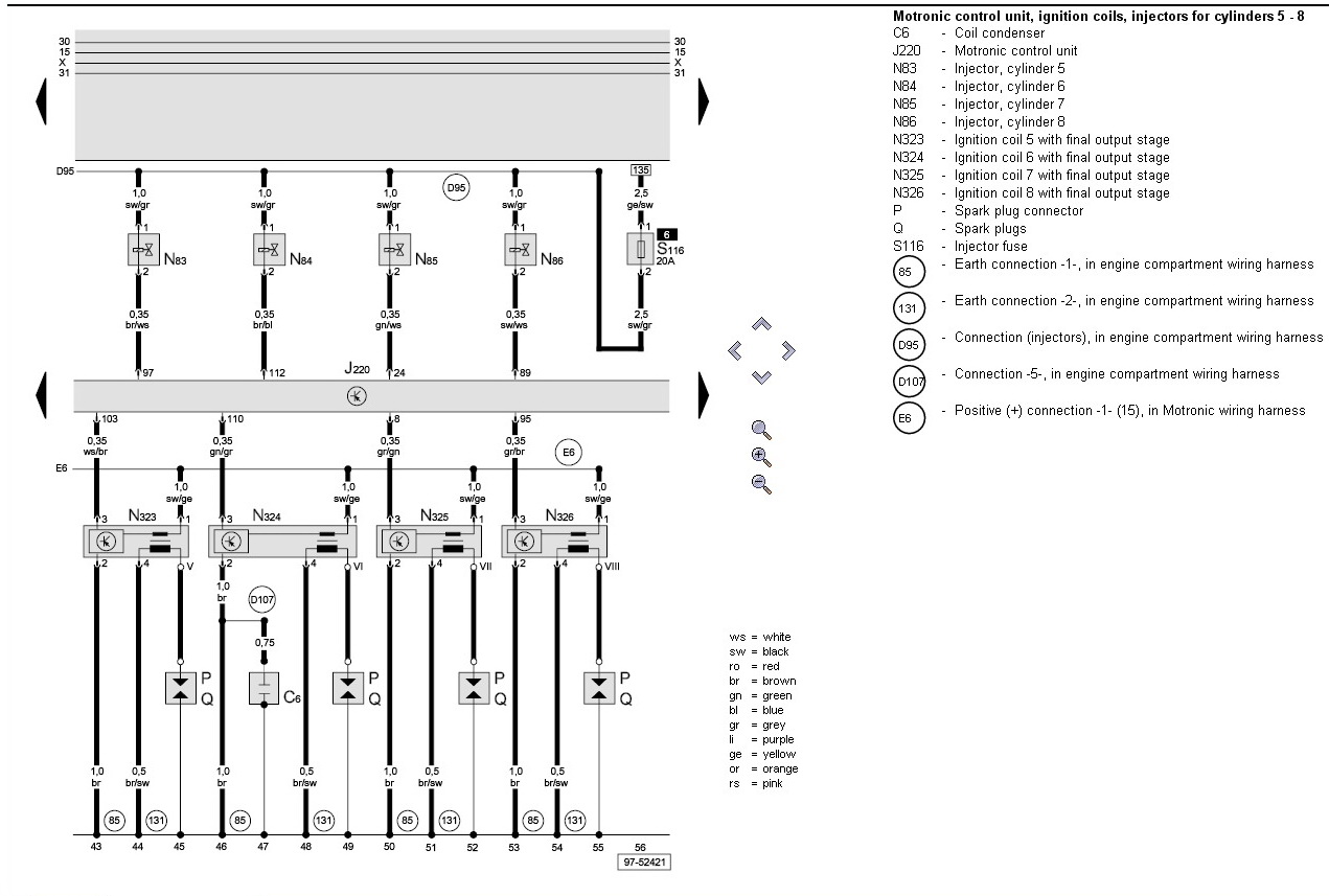
На одном из сервисов электрик сразу сказал, что нужно проверять всю проводку от форсунок к блоку у правления ДВС, а заодно и всю остальную проводку. Разъёмы на форсунках отпадают - снимал, смотрел - чистые, чистил, подгибал контакты, ставил - безрезультатно.
Отсюда вопрос: есть ли на пути от форсунок к БУ ДВС какие-либо далеко закопанные разъёмы, которые могут окислиться? И куда приводит провод от диагностической колодки, прямо к БУ ДВС? Хочется первым делом восстановить связь Ваг-кома с двигателем.
Заранее всем спасибо за советы
П.С. Уже почитал тему Jescha про высоковольтные провода, сделал выводы...








