Нужна помощь с датчиком температуры G89

Вопросы по работе системы климат-контроля, кондиционера.
Grom4871
Сообщения: 2
Зарегистрирован: Чт дек 28, 2023 9:44 pm
Репутация: 0
Модель: Audi A8 2000
Мотор: AQF
Город: Севастополь
Имя: Денис

Нужна помощь с датчиком температуры G89

Сообщение Grom4871 »

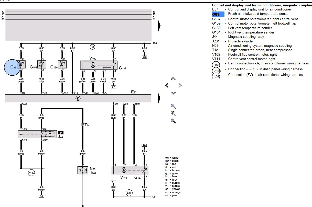
Всем доброго времени суток!Пытаясь восстановить кондей,наткнулся на обрезанные провода датчика G89.На креплении остался сам датчик, и обрезанная фишка.Куда идут эти провода и как восстановить работу этого датчика?Машина A8 D2 Рест AQF 4.2
Вложения
Обрезанный датчик
Обрезанный датчик
photo_2024-09-13_02-12-00.jpg
Аватара пользователя
Akin
Президент Клуба
Сообщения: 27961
Зарегистрирован: Пн авг 27, 2007 2:01 am
Репутация: 643
Модель: ___
Мотор: ___
Город: Королев
Имя: Владислав
Откуда: Москва

Нужна помощь с датчиком температуры G89

Сообщение Akin »

///
Вложения
1.jpg
Grom4871
Сообщения: 2
Зарегистрирован: Чт дек 28, 2023 9:44 pm
Репутация: 0
Модель: Audi A8 2000
Мотор: AQF
Город: Севастополь
Имя: Денис

Нужна помощь с датчиком температуры G89

Сообщение Grom4871 »

Спасибо
Ответить

Вернуться в «Климат-контроль»