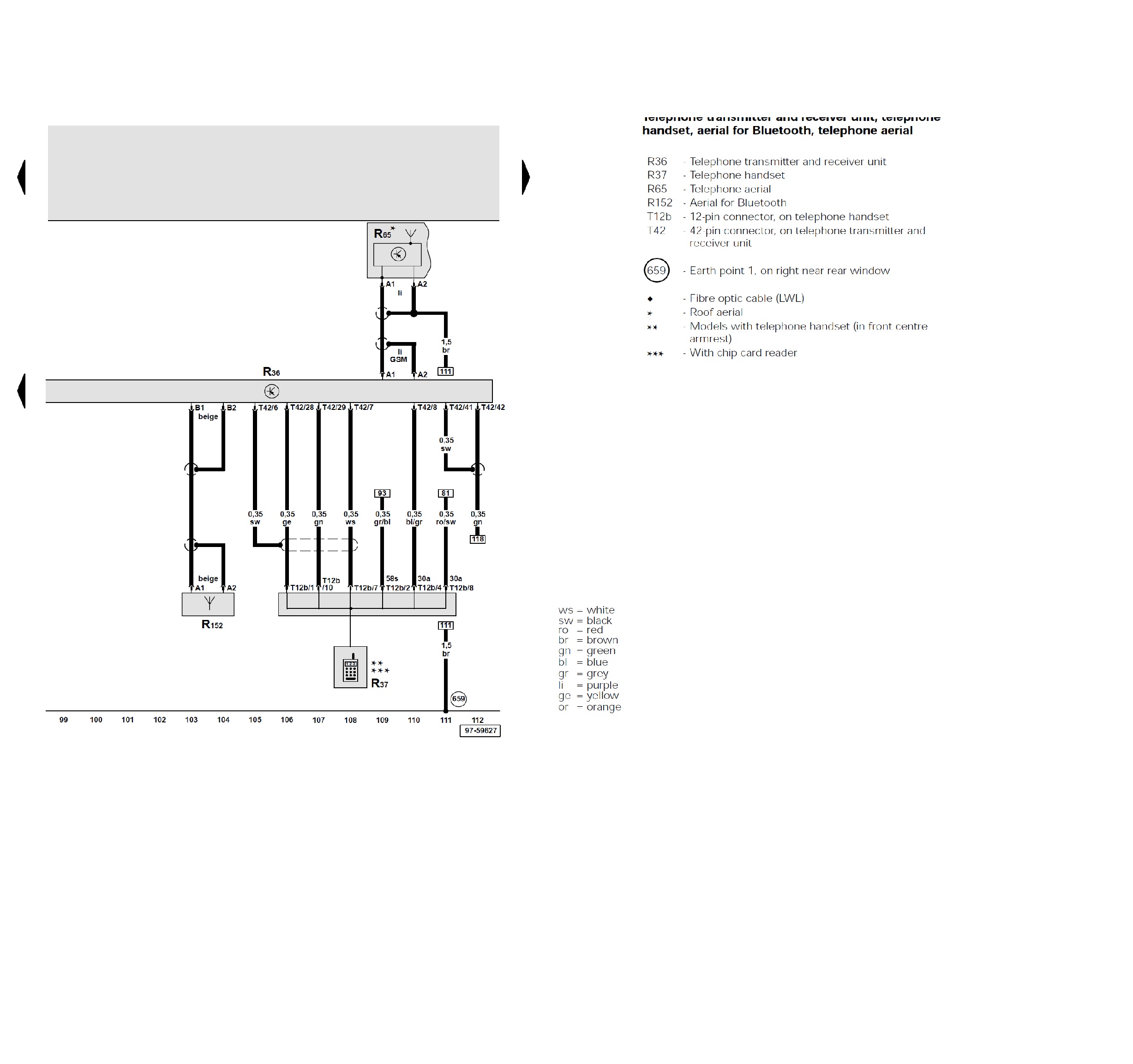
Хочу подключить телефон цветной с СИМ картой, подключил блок блютус 4F1 910 336C, подключил держатель 4G0 035 707 H02, но не уверен что правильно. Машина блок видит, сим карту которая в трубке видит, можно совершать звонки, но только из mmi набор номера, трубка по блютус к блоку подцепилась, но вылетает сообщение на трубке о несовместимости ПО с ММИ.
ММИ обновил до последней версии. в чем может быть причина? Может машина не видит держатель через который может обновиться сама трубка? есть схема, вроде схема держателя, но не могу въехать что и куда.
Нужна распиновка телефонного держателя 4G0 035 707 H02
Штатный телефон. Подключение нештатного телефона.
-
- Реклама
aleksair
Перейти
- ОБЩЕНИЕ
- ↳ О САЙТЕ
- ↳ правила
- ↳ Правила Форума
- ↳ ВСЕ ОБО ВСЕМ - ОБЩЕНИЕ
- ↳ Клубная жизнь
- ↳ Встречи Клуба
- ↳ Клубные поздравления
- ↳ Увлечения
- ↳ Нехорошие люди
- ↳ География Клуба
- ↳ Беларусь
- ↳ Украина
- ↳ Казахстан
- ↳ Евросоюз
- ↳ ПМР и Молдова
- ↳ Наши автомобили
- ↳ Представление новичков
- ↳ Отчеты владельцев БОРТЖУРНАЛ
- ↳ Опросы
- ↳ Ауди А8 и S8 - обсуждение, покупка
- ↳ Audi A8 D2 4D
- ↳ Audi A8 D3 4E
- ↳ Audi A8 D4 4H
- ↳ Audi A8 D5 4N
- ↳ Audi Q7
- ↳ Прочие авто
- ↳ Правовые вопросы
- АВТОСОФТ, ДИАГНОСТИКА
- ↳ ETKA
- ↳ ELSA
- ↳ VAG-COM, VCDS
- ↳ VAS и ODIS
- ↳ Инструмент для ремонта
- ↳ КАТАЛОГ ССЫЛОК
- РЕМОНТ AUDI A8/S8 D2 4D 1994-2002
- ↳ Техподдержка
- ↳ Помощь в расшифровке ошибок
- ↳ ФАК по ремонту
- ↳ Двигатель, питание и выпуск
- ↳ TDI 2.5, 3.3
- ↳ V6 2.8 механика
- ↳ V8 3.7, 4.2 механика
- ↳ V6 2.8 питание, зажигание, управление
- ↳ V8 3.7, 4.2 питание, зажигание, управление
- ↳ W12 6.0 AZC
- ↳ Топливная система
- ↳ Комплекс проблем
- ↳ Система охлаждения и кондиционера
- ↳ система
- ↳ Webasto
- ↳ Климат-контроль
- ↳ Охлаждение двигателя
- ↳ Трансмиссия
- ↳ Привода, кардан
- ↳ Масло АКПП
- ↳ Ремонт АКПП
- ↳ Механическая КПП
- ↳ Рулевое управление и подвеска
- ↳ Рулевая рейка, насос ГУРа
- ↳ Подвеска
- ↳ Тормоза и колеса
- ↳ системы
- ↳ ABS, ESP, ASR
- ↳ Суппорта, колодки/диски
- ↳ Колесные диски, покрышки
- ↳ Кузовной ремонт
- ↳ Салон и опции
- ↳ система
- ↳ Аэрбег
- ↳ Люк
- ↳ Сиденья
- ↳ Руль
- ↳ Зеркала
- ↳ Стекла
- ↳ Парктроник
- ↳ Омыватель/очиститель
- ↳ Электрика и диагностика
- ↳ системы
- ↳ Иммо, ключи, сигнализация, ЦЗ
- ↳ Фары и фонари
- ↳ Электропроводка
- ↳ Панель приборов
- ↳ Генератор и аккумулятор
- ↳ Стартер
- ↳ Подсветка в салоне
- ↳ Круиз-контроль
- ↳ Музыка, TV, DVD, Navi, телефон
- ↳ Телефон
- ↳ Запчасти и обслуживание
- ↳ Номера деталей
- ↳ Техническое обслуживание
- РЕМОНТ AUDI A8/S8 D3 4E 2003-2009
- ↳ Техподдержка
- ↳ Помощь в расшифровке ошибок
- ↳ ФАК по ремонту
- ↳ Двигатель, система питания и выпуска.
- ↳ TDI 3.0 4.0 4.2
- ↳ V6 MPI 3.0 BBJ/ASN
- ↳ V8 MPI 3.7 4.2 BFL/BFM
- ↳ V6 FSI 3.2 BPK
- ↳ V8 FSI 4.2 BVJ
- ↳ V10 FSI 5.2 BSM
- ↳ W12 6.0 BHT/BTE/BSB
- ↳ Система охлаждения и кондиционера, подогрев, Вебасто
- ↳ Трансмиссия
- ↳ Рулевое управление и подвеска
- ↳ Рулевая рейка, насос ГУРа
- ↳ Ходовая часть
- ↳ Пневматическая подвеска
- ↳ Тормоза
- ↳ ABS, ESP, ASR, ручной тормоз
- ↳ Суппорта, колодки/диски
- ↳ Кузовной ремонт
- ↳ Салон
- ↳ MMI - мультимедийный интерфейс
- ↳ MMI
- ↳ TV
- ↳ Аудиосистема
- ↳ Телефон
- ↳ Навигация
- ↳ CD/DVD AMI
- ↳ Электрооборудование
- ↳ Фары и фонари
- ↳ Подсветка
- ↳ Парктроник
- ↳ Стартер
- ↳ Генератор и аккумулятор
- ↳ Щиток приборов
- ↳ Сигнализация, замки, доводчики
- ↳ Стеклоочиститель, омыватель
- ↳ Память, регулировки
- ↳ Аэрбег
- ↳ Система давления шин
- ↳ Обслуживание и запчасти
- ↳ Номера деталей
- ↳ Техническое обслуживание
- РЕМОНТ AUDI A8/S8 D4 4H 2010-2017
- ↳ Техподдержка
- ↳ Помощь в расшифровке ошибок
- ↳ Двигатель, система питания и выпуска.
- ↳ hyb AT 2.0
- ↳ TDI 3.0 V6
- ↳ TDI 4.2 V8
- ↳ TFSI 3.0 V6
- ↳ FSI 4.2 V8
- ↳ TFSI 4.0 V8
- ↳ W12 6.3
- ↳ Система охлаждения и кондиционера, подогрев, Вебасто
- ↳ Трансмиссия
- ↳ Рулевое управление и подвеска
- ↳ Гидроусилитель руля
- ↳ Электроусилитель руля
- ↳ Ходовая часть
- ↳ Пневматическая подвеска
- ↳ Тормоза
- ↳ Кузовной ремонт
- ↳ Салон
- ↳ Электрика, электроника
- ↳ ТО Техническое Обслуживание
- РЕМОНТ AUDI A8/S8 D5 4N 2018-
- ↳ Техподдержка
- Колеса диски покрышки
- ↳ для D2 (4D)
- ↳ для D3 (4E)
- ↳ для D4 (4H)
- ↳ для Q7
- ↳ Ремонт дисков
- Техподдержка по родственным моделям VAG
- ↳ Техподдержка
- ТЮНИНГ
- ↳ Тюнинг двигателя, подвески и тормозов.
- ↳ Тюнинг D2
- ↳ Тюнинг D3
- ↳ Тюнинг D4
- ↳ Тюнинг кузова и салона
- ↳ Тюнинг D2
- ↳ Тюнинг D3
- ↳ Тюнинг D4
- Клубный Техцентр
- ПОКУПКА-ПРОДАЖА
- ↳ Продажа запчастей
- ↳ Куплю запчасти
- ↳ Колесные диски, покрышки
- ↳ Продажа автомобилей
- ↳ Куплю автомобиль
- ↳ РАЗНОЕ






